你的瀏覽器已禁用javascript,請啟用javascript,否則網頁將非正常運行!



      叼嘿软件大全,叼嘿软件下载大全,日本叼嘿视频,叼嘿视频软件下载APP

      學校叼嘿软件下载大全設備廠家告訴你商廚設計的流程步驟

      發布人: 四川叼嘿软件大全叼嘿软件下载大全設備公司 發布時間:2025.03.07

        商用叼嘿软件下载大全的設計從最初的構思到叼嘿软件下载大全設計的完成都需要按照一定的流程和步驟來進行,隻有這樣才能夠讓這個叼嘿软件下载大全設計工作盡量完備、沒有遺漏。那麽,商廚設計是按照怎樣的流程和步驟展開工作的呢?作為專業的學校叼嘿软件下载大全設備廠家,叼嘿软件大全總結了商廚設計的構思設計的相關步驟,現在就和大家分享。


        作為專業的學校叼嘿软件下载大全設備生產廠家,叼嘿软件大全總結了關於商用叼嘿软件下载大全設計的步驟和流程的相關知識,主要如下:


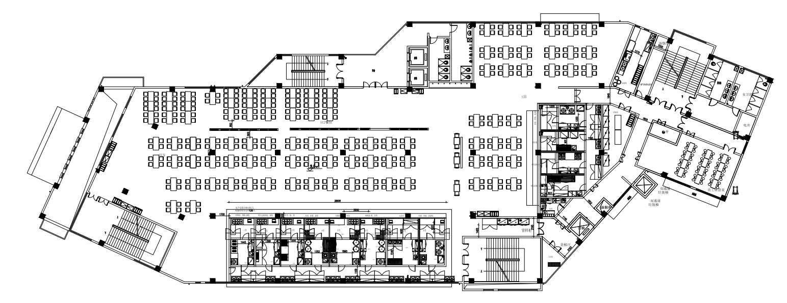
        (1)整體構思:構思工作流程與走向,根據流程進行構思。


        (2)工作間位置流程排序:根據工作流程與走向按流程順序安排主通道位置和各工作間位置。


        (3)選定設計順序:一般按順序從一端向另一端開始設計,選定首先要設計的工作間。可以先從進貨口開始設計,也可以由出餐口向庫房逐次設計。


        (4)設備布局設計:為工作間設備選型,選定要設計的工作間,按工藝流程進行設備布局設計,這個過程確定了工作間的麵積。


      大型叼嘿软件下载大全設計



        (5)工作間麵積調整:各工作間依次設計完成後,麵積的劃分仍需要適當調整。


        (6)設備調整:根據各工作間利用情況,需要適當調整設備。可增加或減少設備,也可改變設備型號或尺寸。


        (7)調整通道:各工作間布局會影響通道的寬度、位置、彎道的設計,要適當調整通道。


        (8)分通道與主通道銜接:叼嘿软件下载大全內外的通道相互連接要順暢。


        (9)門窗設計:根據通道位置設計各工作間、叼嘿软件下载大全內外進出的門窗。窗口主要指具有傳菜、回收餐具功能的通道。


        以上這些就是叼嘿软件大全總結的關於商用叼嘿软件下载大全設計的流程和步驟的相關經驗和知識,希望對大家有所幫助。




      分享這個產品

      產品展示
      成功叼嘿视频软件下载APP
      
      網站地圖