你的瀏覽器已禁用javascript,請啟用javascript,否則網頁將非正常運行!



      叼嘿软件大全,叼嘿软件下载大全,日本叼嘿视频,叼嘿视频软件下载APP

      學校叼嘿软件下载大全工程



        叼嘿软件大全,叼嘿软件下载大全,日本叼嘿视频,叼嘿视频软件下载APP

        COMPOSITION

        學校食堂組成部分

        售賣出餐區
        售賣出餐區
        就餐大廳
        就餐大廳
        叼嘿软件下载大全
        叼嘿软件下载大全

        學校食堂由這幾個部分組成:叼嘿软件下载大全、售賣出餐區、就餐大廳等。其中,就餐大廳占用大部分建築麵積,其次是叼嘿软件下载大全。成都貴族學校——成都新川外國語學校食堂一、二、三層為學生食堂區,四層為教職工食堂區。

        REGIONALDIVISION

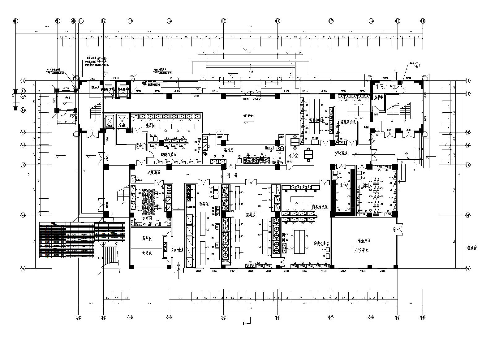
        學校食堂區域劃分

        隨著我國教育事業的迅猛發展,國家持續加大教育經費的投入,與之相配套的教育基建設施也在大規模建設之中。各地方政府、教育局、學校紛紛建造大型配套的學校食堂。新建的食堂在就餐模式、經營模式、建築規模和使用功能等方麵均與傳統的學校食堂有了較大的變化。
        不同的就餐、經營模式有不同的建築空間與之相適應,伴隨著就餐、經營模式的變化,如今,學校食堂大致分為三分式:叼嘿软件下载大全操作區、備餐售賣區及就餐區。且各功能空間的劃分更加明確固定,為我國學校食堂較為常見的模式。

        學校食堂區域劃分平麵圖

        RegionalDivision

        學校食堂特殊性

        非盈利性

        經營上的非贏利性。不以贏利為目的,加上國家給予的優惠政策,餐品價格相對較低

        大規模配送性

        大規模的配送性。對於就餐者眾多的學校食堂,為保證食品安全,主要食材應由供應商統一定點配送。

        單一性

        就餐者的單一性。學校食堂的就餐者為本校師生,人數較穩定。

        季節性

        經營上的非贏利性。不以贏利為目的,加上國家給予的優惠政策,餐品價格相對較 低

        Design considerations

        叼嘿软件大全對學校設計的考量

        高校叼嘿软件下载大全工程應注意的事項

        高校食堂不以盈利為目的,飯菜價格相對較低。在此前提下,應降低建築物的造價和使用 過程中的運營成本。高校食堂有別於中小學食堂,雖同屬學校食堂,但具備一定的特殊性。 由於高校食堂采購次數多並擁有大容量儲備倉庫,可以在食堂中減少冷庫及庫房的建築麵積。 又因高校叼嘿软件下载大全工程項目油煙較重,食品監管部門對學校的食品質量監管會嚴格把控,所以, 高校食堂對安全的抽油煙係統和綠色環保的叼嘿软件下载大全設備有更高要求,而優伯特商用廚具能最 大限度的滿足高校食堂的需求

        Implementation process

        工程實施流程

        Why did you choose us?

        為什麽選擇叼嘿软件大全

        • 豐富的叼嘿软件下载大全設計經驗
        • 專業化施工隊伍
        • 實力雄厚品質保障
        豐富的叼嘿软件下载大全設計經驗
        豐富的叼嘿软件下载大全設計經驗
        豐富的叼嘿软件下载大全設計經驗
        豐富的叼嘿软件下载大全設計經驗
        專業化施工隊伍
        專業化施工隊伍
        專業化施工隊伍
        專業化施工隊伍
        實力雄厚品質保障
        實力雄厚品質保障
        實力雄厚品質保障
        實力雄厚品質保障

        Service case

        工程服務叼嘿视频软件下载APP

        成都七中
        成都七中
        西南民族大學
        西南民族大學
        西南航空學院
        西南航空學院
        四川大學
        四川大學
        攀枝花米易二小
        攀枝花米易二小
        攀枝花九中食堂
        攀枝花九中食堂
        貴州遵義新藍外國語學校
        貴州遵義新藍外國語學校
        成都新川外國語學校
        成都新川外國語學校

        About Ubat

        關於叼嘿软件大全

        網站地圖


        
        網站地圖