最佳的商用叼嘿软件下载大全設備的配置方法
發布人: 叼嘿软件大全叼嘿软件下载大全設備廠 發布時間:2019.01.15
由於每個商用叼嘿软件下载大全的規模、用餐人數、經營菜係的不同,因此,叼嘿软件下载大全對商用叼嘿软件下载大全設備的選擇上也是極大的不同的。這需要根據叼嘿软件下载大全的需求和結構進行合適的配置,這樣才能夠配置上既能滿足自己需要,也不會造成設備浪費的設備。而要做到這點則是需要方法的,下麵小編就來和大家一起探討一下這個問題吧!
首先、叼嘿软件大全談談商用叼嘿软件下载大全設備平麵的布置原則:
第一、符合消防衛生環境要求:
A. 食物及用具製作,存放時應做到生熟分開,髒物與清潔物分開、冷熱分開。
B. 燃油、燃氣調壓、開關站與操作區分開,並配備相應的消防設施。
C. 高於300℃管道與易燃物粗距≥0.5M。
D. 未經淨化處理的油煙排氣口必須高於附近最高建築物0.5M。
第二、應充分利用原有裝置、設施、地形,使各分區擁有合理空間,視野開闊,走道暢通方便管理。
第三、應充分了解用戶既定菜式、一切安排、布置均以此為本。
二、商用工程設計必須掌握的第一手資料:

① 用戶既定菜式和最大進餐人數,這是平麵布置設計的主要依據,根據此可確定主要設備、數量、型號。
② 用戶可供應能源:如鍋爐蒸氣,柴油,煤氣種類,用電(220V/380V)
③ 叼嘿软件下载大全平麵結構、尺寸圖及空間高度結構圖。
④ 用戶的基本要求:如管路走向、汙水出口、風機定位等。
為了能夠真實的掌握現場的情況,一般情況下都要求工程人員和技術人員到現場去考察,了解現場的情況,這樣才能對現場有個清楚的了解,並及時修正圖紙上的錯誤。
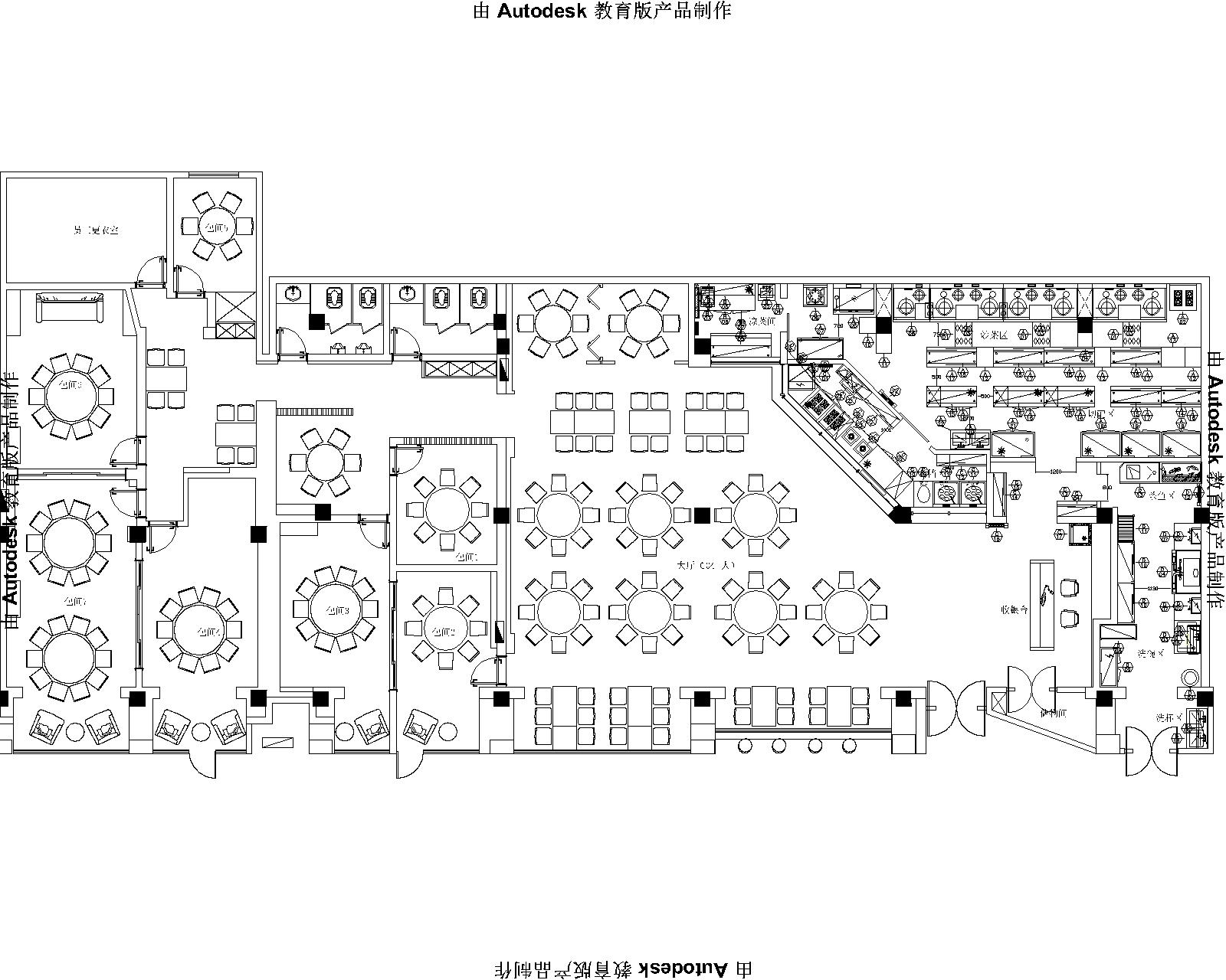
三、商用叼嘿软件下载大全設備工作區的劃分、功能、主要設備的配置
A、標準中式餐廳工作區分為:
(1)熱菜加工區:熱菜加工間從菜肴類別上可分為炒菜、 燉菜、 海鮮、 煲湯、 燒臘等, 從工序上分為兩個加工區:
配菜區: 刀工根據菜單將淨菜進行主料、 配料改刀、 配分、 配伍操作。 主要設備是切配操作台和水池等。 根據需要可選配工作台、 保鮮工作台、 拉門工作台、 冰櫃、 貨架、 貨櫃、 碗櫃等。
烹調區: 主要負責將切配好的菜肴主料、 配料進行煎、 炒、 烹、 炸、 煮、 烤等熟製處理,烹飪成菜肴, 打荷出菜。 該區域設備主要是各種爐具、 調料台、 打荷台。
熱菜配菜區與烹調區配合密切, 掌勺廚師隨時需要向切配廚師說明需求, 因此, 兩個工作區域一般設在一個工作間內。 廚師炒菜時動作比較大, 要有足夠的操作空間。 熱菜配菜區與熱菜烹調區之間, 也就是墩台與打荷台中間設傳菜通道。 傳送切配好的菜肴主料、 配料給掌勺的廚師, 並將出鍋成品傳送到備餐間或餐桌。
(2)粗加工區:其功能是摘去菜葉、根、莖情況,魚肉開生、初加工處理。這個地方需要配置的商用叼嘿软件下载大全設備包括:冰櫃、切菜機、土豆去皮機、宰殺台、切片機、絞肉機、化凍池。
(3)精加工配菜區:其功能是將粗加工食物改製,調配適合菜係要求。
(4)白案區:其功能是麵粉類食物調和、壓製、工藝拚花、拚盤等。
(5)冷拚區:其功能是將不經加熱可直接食用的食物,開瓶、切製、拚花、拚盤等。
(6)洗消區:其功能是將餐具進行清洗、消毒、貯藏。
(7)冷藏庫:用於生、熟易變質食物貯存。
冷藏庫又分為冷凍與冷藏庫。 外地采購、 受時令季節影響的原料、 處於冰凍狀態的原料、 需要儲存補充斷檔的原料都應存放人冷凍區。 需要保鮮的奶蛋原料、 蔬菜水果、 部分海鮮等, 需要迸人冷藏庫存放備用。 根據特殊需要, 還可以設專門的分類庫房、 肉禽冷凍庫、 海鮮冷凍庫、 菜果保鮮庫、 西餐原料庫、 蛋類保鮮庫、 奶製品食品庫等。
庫房大小和庫房功能應依據需要與現有條件設計。 冷庫所需要的設備主要是冷凍設備和庫
(8) 倉庫區:
倉庫區是用於存放待用的蔬菜、 米麵、 調料, 備品的房間. 為了便於加工間隨時存取, 庫倉庫一股在叼嘿软件下载大全內就近設置。 為了防止受潮黴變, 串味, 便幹存取管理. 可根據條件分別設置副食庫、 主食庫、 幹調庫、 備品庫。 若叼嘿软件下载大全麵積有限, 則隻能設綜合庫房。 即使混合存放, 也要分區分類別, 設架、 設櫃歸類擺放, 防止米麵、 調料受潮黴變。
庫房所需要的設備主要是貨架、 貨櫃、 冰櫃、冷藏櫃。
2、中式商用叼嘿软件下载大全餐廳各分區主要設備的配置:
操作區: 對於廣式叼嘿软件下载大全,其菜式烹調工藝有蒸煮、燒臘(烤製)鹵味及火炒四種工藝並舉,偏重於燒臘和蒸煮,其操作區必備設備有:炒灶、蒸爐、腸粉爐、高湯爐、矮仔爐、烤乳豬爐、烤鴨爐、蒸灶或蒸爐、蒸汽櫃。 對於川式叼嘿软件下载大全,其菜式烹調工藝主要以爆炒為主,以煨、蒸為輔,其操作區必備設備有:強力鼓風炒灶、煲仔爐、蒸爐或蒸氣蒸櫃矮仔爐。
以上幾點就是叼嘿软件大全在多年的商用叼嘿软件下载大全設備工程項目中總結的經驗,希望能夠對大家所幫助。
本文內容由四川叼嘿软件大全叼嘿软件下载大全設備公司提供,部分圖片和文字或來自網絡,如涉及知識產權請於成都叼嘿软件下载大全設備公司叼嘿软件大全聯係。如需轉載本文,請與有多年商用叼嘿软件下载大全工程經驗的老牌成都叼嘿软件下载大全設備廠家叼嘿软件大全網站管理員聯係。
上一個產品:專家將你如何選購商用叼嘿软件下载大全設備以及維護方法
下一個產品:你必須知道的商用叼嘿软件下载大全食品安全知識







