商用叼嘿软件下载大全工程專家談商用叼嘿软件下载大全設計應該考慮的因素
發布人: 叼嘿软件大全叼嘿软件下载大全設備廠 發布時間:2019.01.10
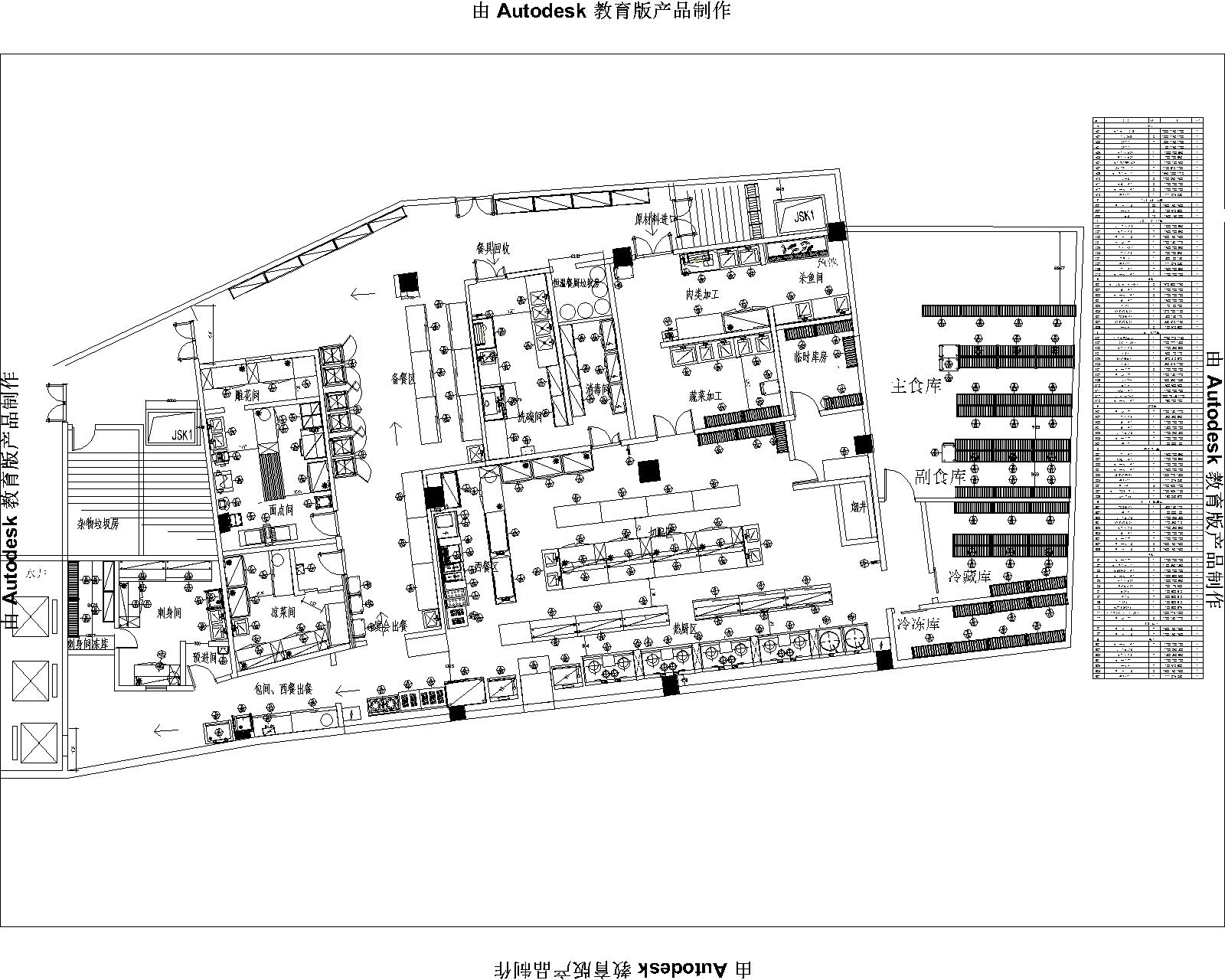
叼嘿软件下载大全是一個飯店、餐廳、酒店、飯店的核心,其直接影響著這些餐飲機構的生產能力和品質。因此,商用叼嘿软件下载大全設計的設計非常的重要,如果叼嘿软件下载大全設計的科學合理,那麽,就會對叼嘿软件下载大全的菜品和效率以及顧客的就餐時間、效率都會產生非常深遠的影響。但是,商用叼嘿软件下载大全的設計卻是 一個非常複雜的問題,需要有專業的經驗豐富的設計人員才能解決這個問題。作為商用叼嘿软件下载大全工程專家,叼嘿软件大全就來談談商用叼嘿软件下载大全設計需要注意哪些重要因素吧!
商用叼嘿软件下载大全設計時必須尊重叼嘿软件下载大全生產的客觀規律

設計時應全麵了解實際情況,充分尊重叼嘿软件下载大全生產的客觀規律,自覺遵守設計的原則,保證叼嘿软件下载大全生產流程的暢通,避免叼嘿软件下载大全內人員的交叉與碰撞。要考慮各工種人員要相對集中。避免工作人員大幅度走動,避免生產工序顛倒,貨物回流現象,防止出菜人員與叼嘿软件下载大全工作人員相互碰撞。否則,不合理的設計,不僅增加叼嘿软件下载大全投資,而且將在叼嘿软件下载大全生產中暴露出各種不足,增加人工及機械的運營成本,給酒店的管理帶來諸多不便。
實用與方便叼嘿软件下载大全的設計必須符合人體工程學的原理,方便使用,最大限度地減輕操作者的勞動強度,以提高工作效率,降低運營成本。
商用叼嘿软件下载大全設計時必須對空間進行合理的劃分
合理劃分各功能區域,各區域間即獨立又能互相配合,多選用節能環保的優質設備,要有利於其使用、清潔、維修、安全及節能,布局時要考慮到采光、照明和通風,最大限度利用自然條件,節約運營成本。
叼嘿软件下载大全的種類及叼嘿软件下载大全的位置不同,叼嘿软件下载大全的設計布局自然也不同。正如有人說過,世界上除了連鎖店或聯鎖飯店的叼嘿软件下载大全設計布局大致相同之外,不可能再找到兩家叼嘿软件下载大全在設計布局上一致的了。不同類型的叼嘿软件下载大全在設計方麵均有不同的要求。因此,根據叼嘿软件下载大全的種類及叼嘿软件下载大全的位置,設計團隊致力於把叼嘿软件下载大全設計得更加合理化。
另外商用叼嘿软件下载大全設計還應該考慮到一下幾個具體因素:
1商用叼嘿软件下载大全的通風設計
不管叼嘿软件下载大全選配先進的運水煙罩,甚至是直接采用簡捷的排風扇,尤其是配菜、烹調區形成負壓。所謂負壓,即排出去的空氣量要大於補充進入叼嘿软件下载大全的新風量。這樣叼嘿软件下载大全才能保持空氣清新。但在抽排叼嘿软件下载大全主要油煙的同時,也不可忽視烤箱、焗爐、蒸箱、蒸汽鍋以及蒸汽消毒櫃、洗碗機等產生的濁氣、廢氣,要保證所有煙氣都不在叼嘿软件下载大全區域彌漫和滯留。因此在烤箱、焗爐、蒸箱、蒸汽鍋以及蒸汽消毒櫃、洗碗機等產生油煙和蒸氣設備的上方,必須配備強有力的抽排煙設施,力求做到烹調叼嘿软件下载大全每小時換氣50-60次,一般隨時保證叼嘿软件下载大全空氣清新。
2商用叼嘿软件下载大全的明廚設計原則
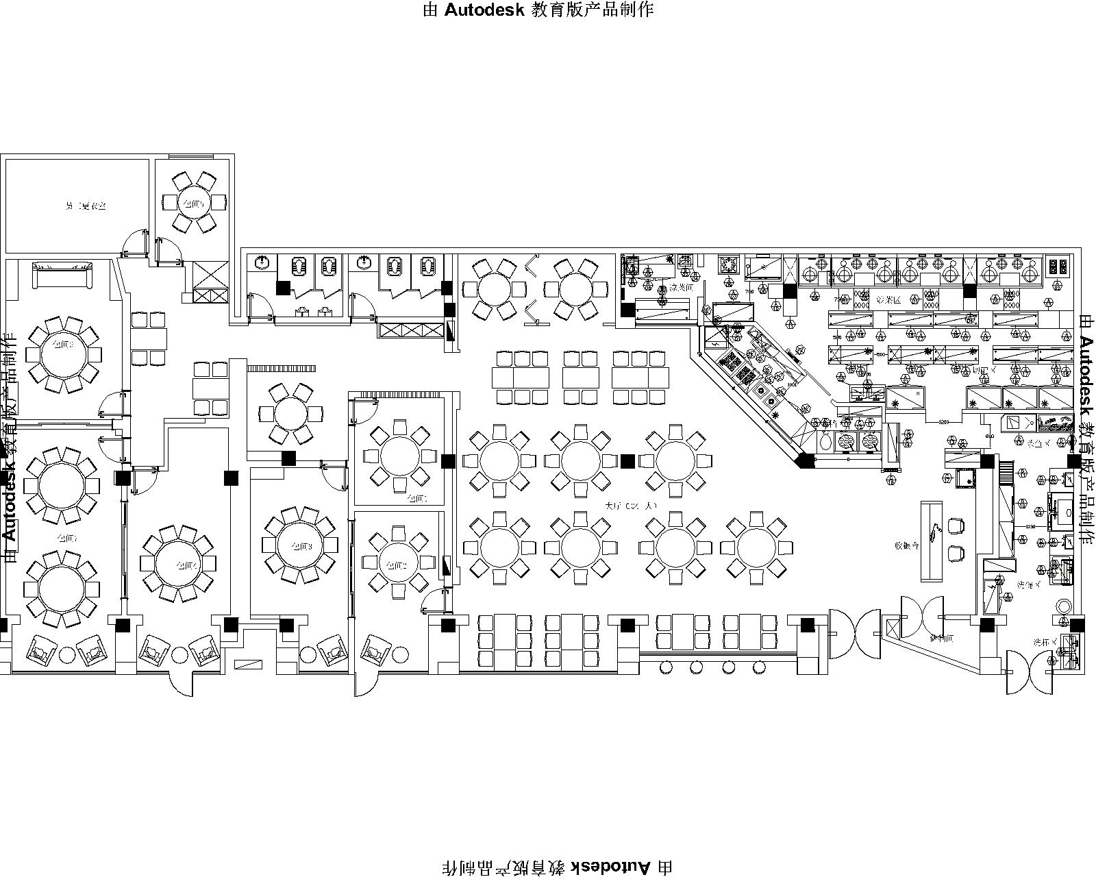
叼嘿软件下载大全的明廚、明檔。餐館設計明廚、明檔,是餐飲業發展到一定時期的產物。設計明廚、明檔,至少要注意不應因此設計而增加餐廳的油煙、噪聲和有礙觀瞻場景。有些隻宜將生產的最後階段作展示性的明廚設計,實在沒有必要和盤托出。
3商用叼嘿软件下载大全的地麵原則
叼嘿软件下载大全的地麵設計和選材,切不可盲從,必須審慎定奪。在沒有選擇到新穎實用的防滑地磚前,使用紅鋼磚仍不失為有效之舉。因為叼嘿软件下载大全會產生很多廢水,因此,在設計叼嘿软件下载大全地麵材料時叼嘿软件下载大全的安全性才是最重要的。
4商用叼嘿软件下载大全的用水和明溝設計原則
有許多叼嘿软件下载大全在設計水槽(水池)時,由於配備的太少、太小,使得廚師要跑很遠才能找見水池,於是忙起來幹脆就很難顧及清洗,叼嘿软件下载大全的衛生很難令人信服務。叼嘿软件下载大全的明溝,是叼嘿软件下载大全汙水排放的重要通道。可有些叼嘿软件下载大全明溝太淺,或太毛糙,或無高低落差,或無有機連接,使得叼嘿软件下载大全或水地相連,或臭氣熏人,叼嘿软件下载大全很難做到幹爽、清淨。另外,叼嘿软件下载大全也必須設計一些暗溝,以防止廢水內的氣味散出。因此,在進行叼嘿软件下载大全設計時要充分考慮原料化凍、衝洗,廚師取用清水和清潔用水的各種需要,盡可能在合適位置使用的單槽或雙槽水池,切實保證食品生產環境的整潔衛生。
5商用叼嘿软件下载大全的燈光設計原則
餐廳的燈光重文化,叼嘿软件下载大全的燈光重實用。這裏的實用,主要指臨爐炒菜要有足夠的燈光以把握菜肴色澤;案板切配要有明亮的燈光,以有效防止刀傷和追求精細的刀工;出菜打荷的上方要有充足的燈光,切實減少雜草混入並流入餐廳等等。叼嘿软件下载大全燈光不一定要像餐廳一樣豪華典雅、布局整齊,但其作用絕不可忽視。
輔助設計是強化完善餐飲功能的必要補充。輔助設計,主要指的是在餐飲功能的劃分上,既不算直接服務於客人用餐、消費的餐廳、也不屬於菜點生產製作的叼嘿软件下载大全。但少了這些設計,餐廳可能會顯得粗俗不雅,甚至噪雜零亂;叼嘿软件下载大全生產和出品也會變得斷斷續續,甚至殘缺不全。這些輔助設計主要有備餐間和洗碗間等。
6 商用叼嘿软件下载大全燃料庫設計原則
有些商用叼嘿软件下载大全使用的燃料往往是液化氣和柴油。這個時候就需要專門設計一個燃料庫,因此在設計燃料庫一定要把燃料都集中到一個地方擺放,並且燃料庫一定要設計在一個離開明火比較遠的、比較隱蔽的地方。這樣才能保證叼嘿软件下载大全燃料的安全,以免引起火災。在燃料庫的周圍至少應該保證在3米之內不能看見明火。
以上幾點就是叼嘿软件大全在多年的商用叼嘿软件下载大全設計中總結出來的經驗,掛一漏萬之處是難免的希望對大家能夠有所幫助!
本文內容由四川叼嘿软件大全叼嘿软件下载大全設備公司提供,部分圖片和文字或來自網絡,如涉及知識產權請於成都叼嘿软件下载大全設備公司叼嘿软件大全聯係。如需轉載本文,請與有多年商用叼嘿软件下载大全工程經驗的老牌成都叼嘿软件下载大全設備廠家叼嘿软件大全網站管理員聯係。







