專業叼嘿软件下载大全設備公司告訴你,小飯店叼嘿软件下载大全設計如何劃分叼嘿软件下载大全功能區
發布人: 叼嘿软件大全叼嘿软件下载大全設備 發布時間:2017.07.07
現代的商用叼嘿软件下载大全是一個複雜係統的結合體,在小飯店叼嘿软件下载大全設計時,必須了解叼嘿软件下载大全各種工作間的功能、所需要的設備以及所完成的工序工藝過程,也就是必須了解叼嘿软件下载大全的人流物流的傳遞過程。一般飯店叼嘿软件下载大全的功能區的劃分決定了叼嘿软件下载大全生產加工的工序劃分,有怎樣的功能區域就有怎樣的叼嘿软件下载大全分工,而功能區的劃分合理與否都直接影響著叼嘿软件下载大全的效率和效益。對叼嘿软件下载大全功能區進行合理的劃分和配置合適的設備,這需要非常專業的知識和豐富的經驗,我公司作為在成都叼嘿软件下载大全設備中有10多年設計經驗的公司,在這方麵積累了豐富的經驗,現在就對這個問題談談自己的看法。

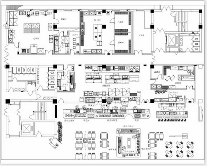
一般飯店酒店叼嘿软件下载大全可分為以下幾個區域,即:儲存區、粗加工區、副食加工區、主食加工區、備餐與售賣區和洗消區。下麵就對飯店叼嘿软件下载大全設計中必須注意的幾個主要的區域簡要的介紹一下。
儲存區主要功能是負責儲存原料。這個區域一般設置在叼嘿软件下载大全區域內,也可以設置在靠近叼嘿软件下载大全的區域,被配置專門的人管理。這儲存區內又可分為檢斤處、冷藏庫、庫房等。在這個區域內主要配置的設備是計量器、記賬設備冷凍設備、貨架、貨櫃、冰櫃、冷藏櫃等。
粗加工區主要是對原料進行初步加工。不同環境條件的組加工區隻能不盡相同較大的叼嘿软件下载大全或為保證多個叼嘿软件下载大全供應,應充分利用設備資源,較少重複設置,集中管理。所以應該在原有的副食加工的基礎上,把主食的粗加工也放在粗加工的區域內,把粗加工區變成加工配送中心。一般在這個區域內需要配置冰櫃、切菜機、去皮機、星盆台、絞肉機等。在這個區域一般還需布局垃圾房,在設計時,應該注意配置帶蓋垃圾桶和衝洗裝置。
副食加工區。這個區域是叼嘿软件下载大全的主要工作區,主要負責熱菜的切配、配伍、烹調、打荷,涼菜的燒烤、鹵製和切配裝盤。這個區域配置的主要設備包括各種爐具、調料台、打荷台以及湯灶、配置工作台、保鮮工作台、拉門工作台、冰櫃、貨架、貨櫃、碗櫃、製冰機等、。
主食加工區的主要功能是完成米麵、點心的成型和熟製等工序。一般主食加工區又可分為生製加工區和熟製加工區。生製加工區主要是完成米類食物的淘洗裝盤、蒸煮熟製等。主食熟製區則主要完成主食的蒸、煮、炸、烘、烤、煎、烙等。這個區域主要配置的叼嘿软件下载大全設備是蒸飯櫃、烤箱、電炸鍋、電餅鐺、饅頭機、包子機、大鍋灶、炒菜灶以及工作台、保鮮工作台、水池、冰櫃、貨櫃、碗櫃等。
備餐與售賣區是銜接叼嘿软件下载大全和餐廳之間或者直接服務餐廳的工作區域。這個區域根據需要可以配置備餐間、售飯間、明檔等為客戶服務。在這個區域配置的叼嘿软件下载大全設備包括傳菜台、傳菜架、餐具架、茶具架、熱水器、送餐車、點菜係統、展示櫃、保溫工作台等。
洗消區主要負責收殘、洗碗、消毒、餐具傳送歸為的工作,位置應該靠近餐廳。在設計飯店叼嘿软件下载大全時這個區域應該配置水槽、拉門工作台、碗櫃、汙碟台、消毒櫃、熱水器、收殘車。大型飯店酒店可以配置洗碗機和宴會用餐具車等。
以上就是叼嘿软件大全根據10年的小飯店叼嘿软件下载大全設計經驗總結的基本原則,在具體的叼嘿软件下载大全設計工作中,應該結合實際情況進行運用,發揮自己的創造性和創造力。







