隆昌叼嘿软件下载大全設備公司告訴你商用叼嘿软件下载大全設計的組成
發布人: 四川叼嘿软件大全叼嘿软件下载大全設備公司 發布時間:2023.06.28
商用叼嘿软件下载大全也和家用叼嘿软件下载大全一樣,在施工之前,需要先繪製叼嘿软件下载大全設計圖。而由於商用叼嘿软件下载大全的規模一般較大,且叼嘿软件下载大全設備的數量和種類較多,使用的能源也更多元化,因此,商用叼嘿软件下载大全設計就和家用的不同。那麽,商用叼嘿软件下载大全設計由那幾部分構成呢?最近不少隆昌的朋友就在谘詢這個問題。雖然叼嘿软件大全不是隆昌叼嘿软件下载大全設備公司,但是,作為長期在隆昌銷售學校叼嘿软件下载大全設備的公司,現在就和大家分享相關的知識。
作為專業的商用叼嘿软件下载大全全套設備生產廠家,叼嘿软件大全根據多年的商廚設計經驗,總結了商用叼嘿软件下载大全設計的幾大構成部分,具體如下:
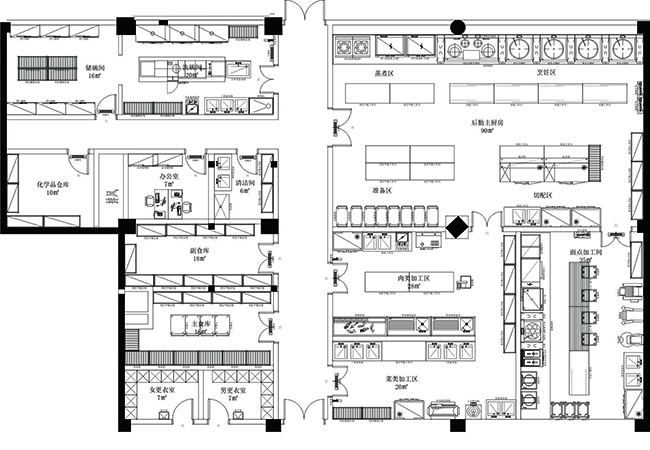
1.叼嘿软件下载大全設備布局:規劃整體叼嘿软件下载大全的功能流程,叼嘿软件下载大全設備類型、數量、尺寸。
2.叼嘿软件下载大全土建隔斷圖:叼嘿软件下载大全隔斷的尺寸和位置,門窗的尺寸和位置,叼嘿软件下载大全使用的轉換窗的高度和位置,構造細節等。

3.叼嘿软件下载大全設備供電點位圖:所有設備的用電量,電位的安裝高度、供電點的布線尺寸等。
4.叼嘿软件下载大全設計供水點位圖:所有用水設備的位置,包括冷水和熱水、水的安裝高度、供水的管徑等。
5.叼嘿软件下载大全設備排水點位圖:所有需要設備的位置,排水管徑等。

6.叼嘿软件下载大全設備通風排煙圖:所有排煙設備的排煙罩位置、排煙管徑大小、排煙管道走向、叼嘿软件下载大全風機淨化器的布置位置等。
7.氣點位圖等:叼嘿软件下载大全燃氣設備的供氣。
以上是叼嘿软件大全整理的商用叼嘿软件下载大全設計的組成部分的相關知識,希望對大家有所幫助。
上一個產品:四川達州叼嘿软件下载大全設備生產廠家建議你不要買便宜...
下一個產品:綿竹叼嘿软件下载大全設備廠家告訴你絞肉機怎麽賣







