成都商用叼嘿软件下载大全工程公司告訴你醫院叼嘿软件下载大全設計細節
發布人: 四川優百特叼嘿软件下载大全設備公司 發布時間:2020.04.09
醫院是給病人治病的地方,所以醫院叼嘿软件下载大全承擔著為醫生和病人提供餐飲服務的任務。但是,由於醫院是特殊的場所,所以,醫院的叼嘿软件下载大全在設計上麵也有其特殊性。那麽,在設計醫院食堂叼嘿软件下载大全時,應該考慮哪些因素呢?又應該配置哪些設備呢?作為專業的成都商用叼嘿软件下载大全工程公司,現在叼嘿软件大全就和大家分享相關的知識。
作為成都商用叼嘿软件下载大全工程公司,叼嘿软件大全認為要設計醫院叼嘿软件下载大全可以考慮以下幾個方麵:
一、醫院食堂叼嘿软件下载大全設計方案
在設計醫院食堂叼嘿软件下载大全設計圖時,應充分考慮以下幾個方麵:隻有在充分考慮設計方案的情況下,才能使後期的醫院食堂暢通,隻有醫生和病人才能讓醫生和病人出院。並且為患者的家人提供更好的膳食。
1、通風性:一般設計排氣量為油煙排風設備,按80%的排風設計補充風量。此外,還要考慮合理的房間通風。隻有醫院食堂通風良好,才能讓醫院食堂廚師發揮得更好。
2、叼嘿软件下载大全地板:叼嘿软件下载大全地板必須使用防滑磚,在選擇新穎實用的防滑磚之前,使用紅鋼磚仍然是一個有效的舉措。
3、用水明溝:叼嘿软件下载大全排水溝不應太淺,明渠表麵應平整,高低無差別,做好露溝地麵下的有機連接,做好排水溝末端防老鼠的工作。
4、叼嘿软件下载大全燈光:叼嘿软件下载大全燈光要實用,熱菜加工要用足夠的光來處理,以把握菜肴色澤,案板切配要有明亮的燈光,為了有效防止刀傷和追求精細的刀工,出菜找荷要有充足的燈光,減少混入餐廳和流入餐廳的碎片數量。
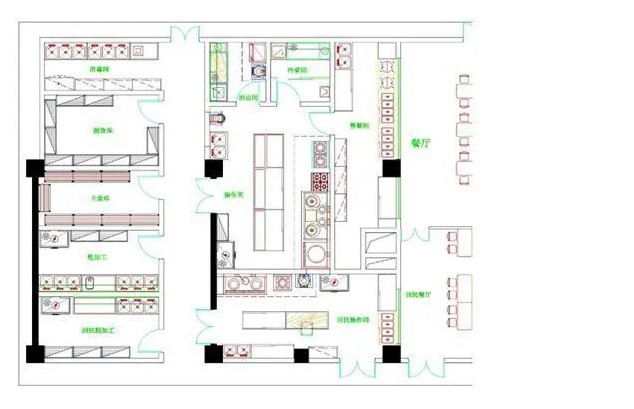
二、醫院食堂叼嘿软件下载大全設計功能間的介紹
粗加工區:為滿足衛生要求,對原料分別進行清洗和切割,不得與叼嘿软件下载大全其他區域交叉。
操作間:操作間是最集中的地方,小炒、蒸菜、燉菜、炸製類菜品、湯類均在此間製作。為此,其主要配置為用於炒菜的烹調範圍、用於存儲原料的冰箱、以及用於存儲調味盤的桌櫃。由於來訪病人的用餐時間不統一,又都以粥類等流食為主要食物,故此間設置有煲仔爐,方便在做份量較少的食物時使用。
回民操作間:醫院病人隨處可見,所以叼嘿软件大全需要考慮少數民族的飲食習慣,所以設置回民操作間,以滿足少數病人對食物材料的特殊需求。
三、醫院食堂叼嘿软件下载大全設計規範
醫院食堂對場所要求非常嚴格,因為醫院是一個非常幹淨的場所,衛生標準高於其他地方。
1、不應在幹燥地形、給排水條件和供電地區選擇汙染易發地區。
2、應遠離排泄物、汙水槽、垃圾站。
3、醫院附近不得有有害氣體、放射性物質和其他擴散汙染源。
以上幾點就是叼嘿软件大全整理的關於醫院叼嘿软件下载大全設計的相關知識,希望能夠對大家啊有用。
本文內容由四川叼嘿软件大全叼嘿软件下载大全設備公司提供,部分圖片和文字或來自網絡,如涉及知識產權請於成都叼嘿软件下载大全設備公司叼嘿软件大全聯係。如需轉載本文,請與有商用叼嘿软件下载大全工程經驗的老牌叼嘿软件下载大全設備廠家叼嘿软件大全網站管理員聯係。若需獲取更多商用叼嘿软件下载大全設備、酒店叼嘿软件下载大全設備、不鏽鋼廚具產品信息,歡迎各位來電來函,叼嘿软件大全將與大家共同分享行業資訊。







